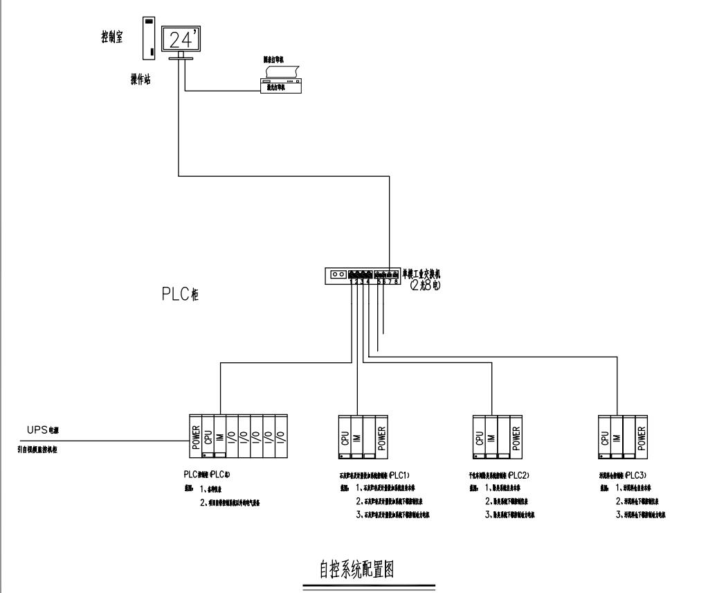
合肥鴻昇自動化承接深圳市鐵崗石巖水庫-水質保障工程(一期)污泥石灰干化系統本項目為石巖水庫水質保障工程污泥石灰干化系統。具有各設備的配電系統、自動化控制系統與視頻監控系統。主控室配備監控系統上位機與自動化控制上位機以及日常系統報表打印機等。自控系統采用西門子1200PLC、西門子KTP1200觸摸屏以及西門子WinCC上位機組態軟件通過S7以太網通訊連接控制,同時與項目上PLC系統采用以太網連接讀寫信號與命令,實現整套污泥石灰干化系統的自動化。設備通過采集現場信號運行和保護,具有本地控制與遠程控制,同時每臺設備的供電系統出現故障都會報出相應故障,系統同時配備了運行模式與調試/維修模式,更方便與前期調試與后期維護。上位機通過系統采集信號生成日常數據報表、設備故障報表、設備數據曲線圖等都可一鍵打印等功能,同時具有操作等級權限,管理員可自由添加和更改操作員密碼。
Wincc上位機畫面



觸摸屏畫面








本文鏈接:http://m.dairylandlabs.net/106.html